Mantelzorgwoning
OVER DIT PROJECT
Dit is mijn examenproject geweest van de opleiding interieuradviseur op het Hout- en Meubileringscollege. Voor dit project heb ik een mantelzorgwoning ontworpen met een landelijke en moderne uitstraling. Hierbij heb ik natuurlijk gelet op makkelijk meubilair en genoeg doorloopruimte. Met dit project heb ik ook op de expositie van onze school gestaan en heeft heet ook nog in de Woonmall Alexandrium mogen staan, hier ben ik in de top 3 gekomen van beste ontwerpen.
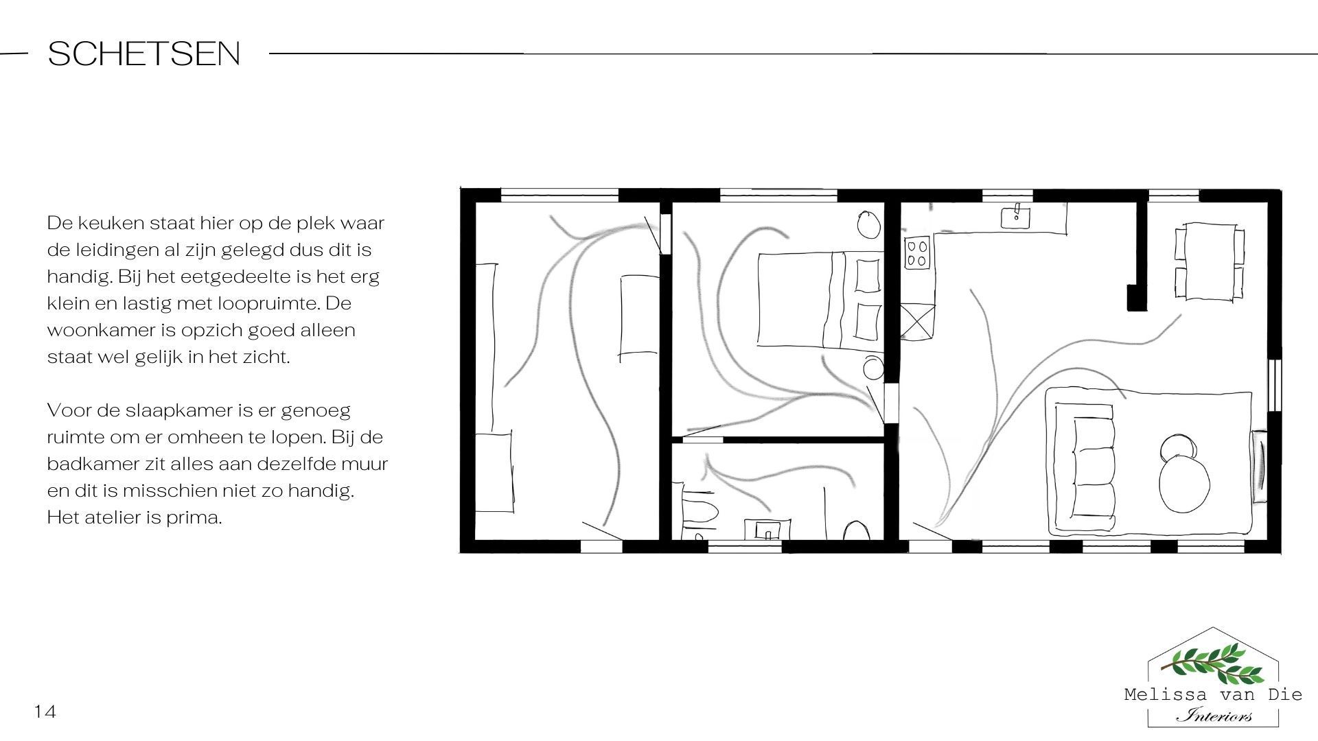
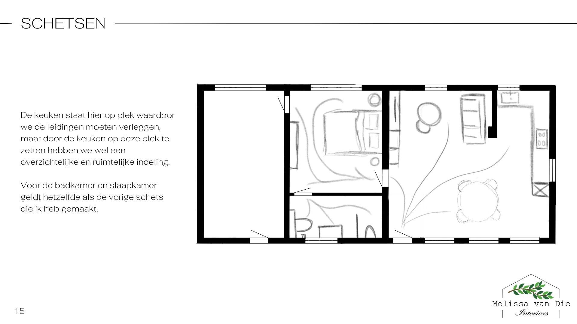
Hieronder het proces te zien van dit project
Hieronder het proces te zien van dit project



























































