Appartement
OVER DIT PROJECT
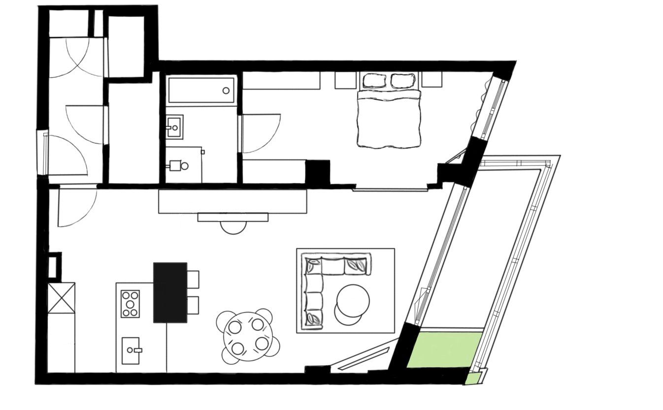
Tijdens dit project was het de bedoeling om een appartement in te richten voor iemand die hoogsensitief was. Hier moet dus goed rekening mee worden gehouden in het interieur, zachte texturen, minimalistisch en goede akoestiek. Ik heb hier gebruik gemaakt van een lichte basis in de vloer en daarop verder gebouwd met een strakke minimalistische keuken. Voor de rest heb ik gebruik gemaakt van natuurlijke kleuren en ronde vormen, wat je terug kan zien in het woongedeelte van de ruimte.
Hieronder het proces te zien van dit ontwerp
Hieronder het proces te zien van dit ontwerp


























