Stage Berlijn
OVER DIT PROJECT
Tijdens mijn stage in Berlijn heb ik veel meegeholpen met projecten voor particuliere en zakelijke klanten. Van een groot flex kantoor tot aan een villa in Kroatië. Het was erg leuk om mee te mogen denken en ontwerpen van alle ruimtes.
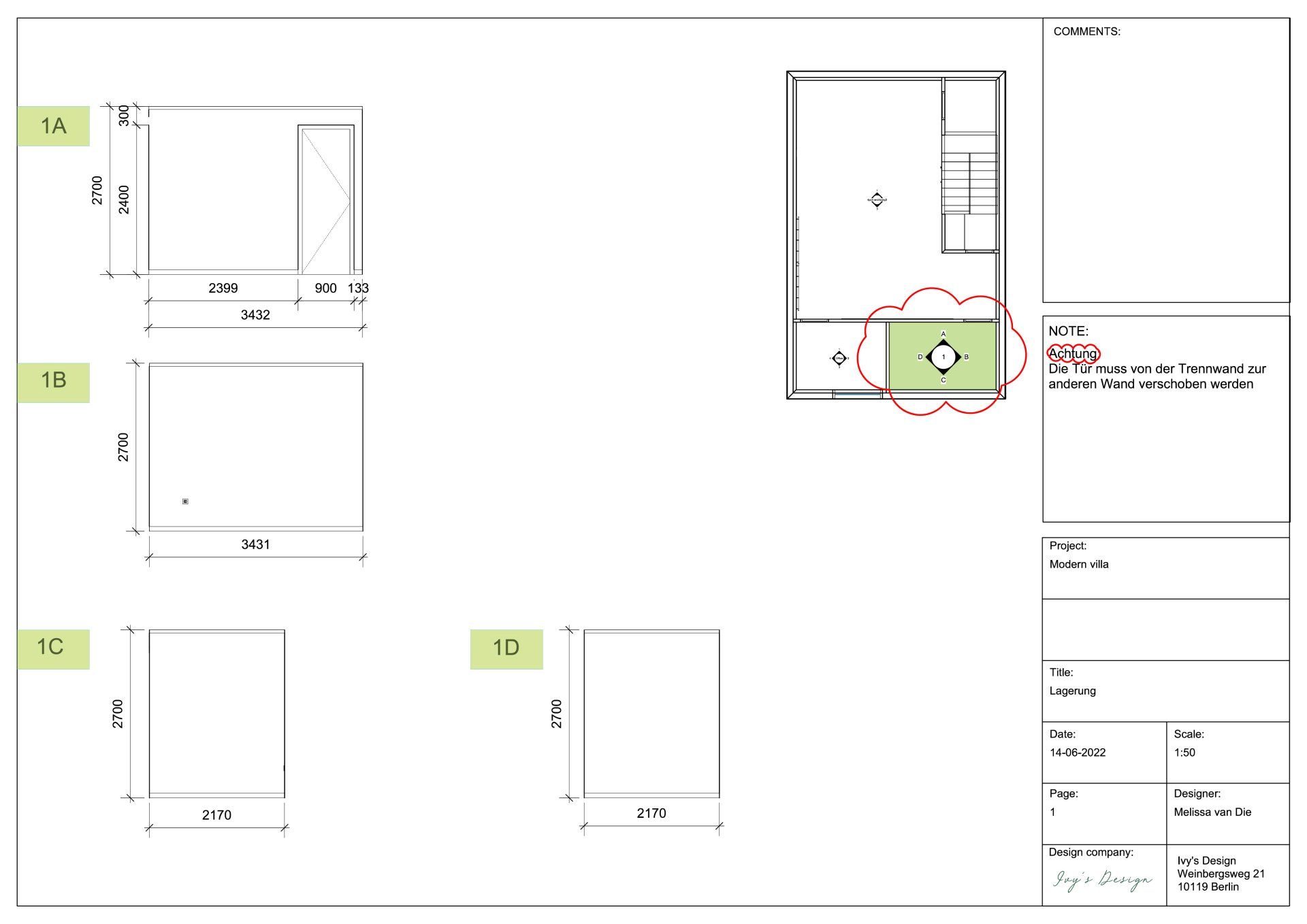
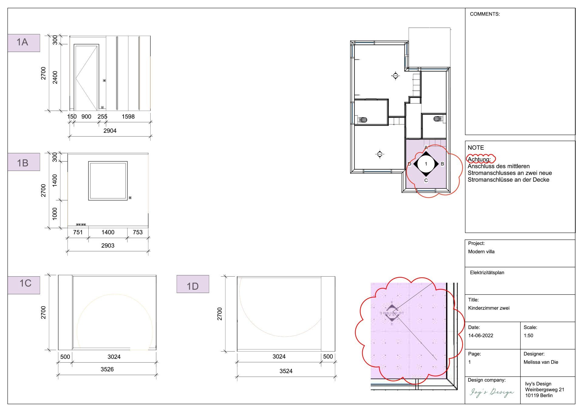
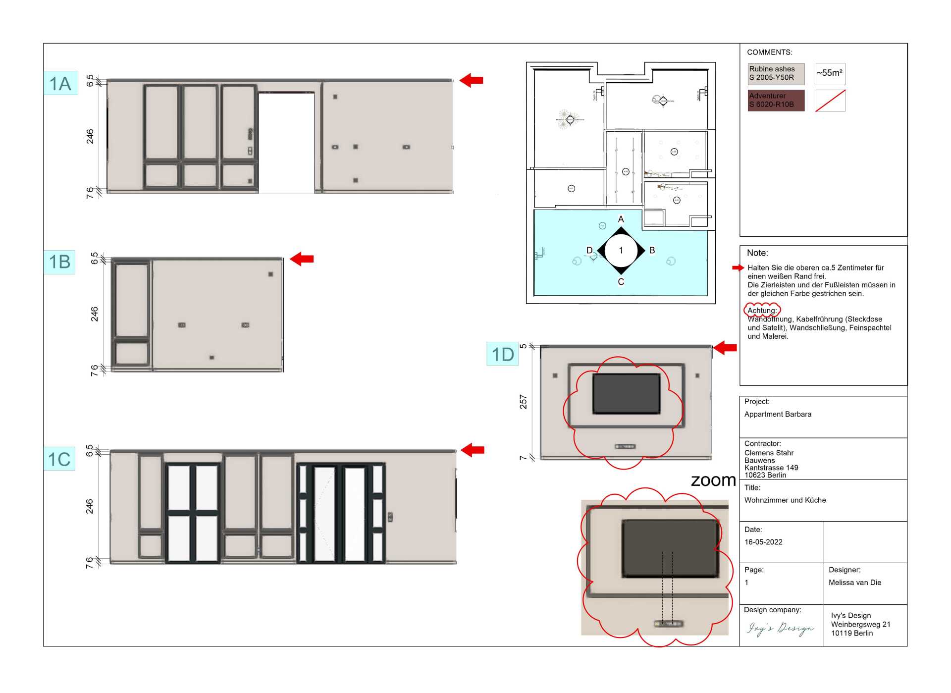
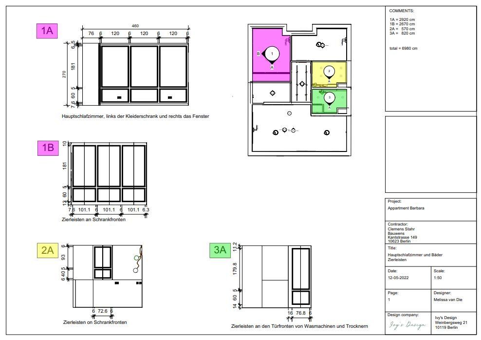
Hieronder het proces te zien van dit ontwerp
Hieronder het proces te zien van dit ontwerp

































